Zona Castiglione - Tribunale | |||
| € 1.750,00 | ![]() Mq. 131 |
![]() |
![]() |

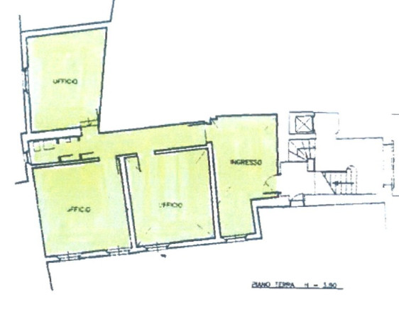
CENTRO STORICO in PIAZZA CALDERINI, nel cuore della città adiacente a Galleria Cavour e di fronte a Piazza Minghetti, in zona prestigiosa, è disponibile per la locazione un ufficio al piano terra di un palazzo signorile. Ampio ingresso/reception, tre vani, bagno. € 1.750 mensili. Le spese condominiali, pari ad € 330 mensili, sono comprensive di riscaldamento, climatizzazione estiva e portierato. E' richiesto un deposito cauzionale di 3 mensilità e una fideiussione bancaria di 3 mensilità. HISTORIC CENTER in PIAZZA CALDERINI, in the heart of the city adjacent to Galleria Cavour and opposite Piazza Minghetti, in a prestigious area, an office on the ground floor of an elegant building is available for rent. Large entrance/reception area, three rooms, bathroom. €1,750 per month. Condominium fees, equal to €330 per month, include heating, summer air conditioning, and concierge service. A security deposit of 3 months' rent and a bank guarantee of 3 months' rent are required.

193271711-Irnerio Box, Bologna Potremmo richiedere che i cookie siano attivi sul tuo dispositivo. Utilizziamo i cookie per farci sapere quando visitate i nostri siti web, come interagite con noi, per arricchire la vostra esperienza utente e per personalizzare il vostro rapporto con il nostro sito web.
Clicca sulle diverse rubriche delle categorie per saperne di più. Puoi anche modificare alcune delle tue preferenze. Tieni presente che il blocco di alcuni tipi di cookie potrebbe influire sulla tua esperienza sui nostri siti Web e sui servizi che siamo in grado di offrire.
Questi cookie sono strettamente necessari per fornirti i servizi disponibili attraverso il nostro sito web e per utilizzare alcune delle sue funzionalità.
Poiché questi cookie sono strettamente necessari per la fruizione del sito web, non è possibile rifiutarli senza influire sul funzionamento del nostro sito. È possibile bloccarli o eliminarli modificando le impostazioni del browser e imporre il blocco di tutti i cookie su questo sito web.
Questi cookie raccolgono informazioni che vengono utilizzate in forma aggregata per aiutarci a capire come viene utilizzato il nostro sito web o l'efficacia delle nostre campagne di marketing o per aiutarci a personalizzare il nostro sito web e la vostra applicazione al fine di migliorare la vostra esperienza.
Se non vuoi che monitoriamo le tue visite sul nostro sito puoi disabilitare il monitoraggio nel tuo browser qui:
Usiamo anche diversi servizi esterni come Google Webfonts, Google Maps e fornitori di video esterni. Poiché questi fornitori possono raccogliere dati personali come il tuo indirizzo IP, ti consentiamo di bloccarli qui. Si prega di essere consapevoli del fatto che questo potrebbe ridurre pesantemente la funzionalità e l'aspetto del nostro sito. Le modifiche avranno effetto una volta ricaricata la pagina.
Impostazioni per Google Webfont:
Impostazioni per Google Maps:
Vimeo and YouTube video embeds:
Puoi leggere i nostri cookie e le nostre impostazioni sulla privacy in dettaglio nella nostra pagina sulla privacy.
Privacy Policy

Lascia un Commento
Vuoi partecipare alla discussione?Sentitevi liberi di contribuire!